Control Automatización
Smart Parking
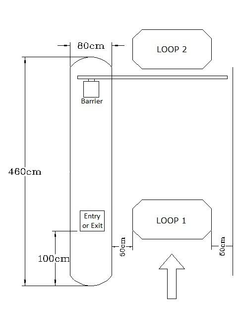
Loop en barreras
1. Preparación de la isla
1.1. Dimensiones sugeridas
Una isla de plataforma de cemento para la instalación de la
terminal y la barrera se recomienda con las siguientes
dimensiones sugeridas
como: 20cm (alto) x 460cm (largo) x 80 cm (ancho)
para garantizar la seguridad de los equipos y el personal
de servicio.
Melchor ocampo Edo de Mex CP 54880 Telefon: 10547495 Cell : 5546049816
Internet: www.system-vr.com E-Mail: .system-vr@hotmail.comVentas: ventasvr@system-vr.com
Copyright © 2021 by "System VR" All Rights reserved

2. Instalación de cable de lazo de detección:
2.1. Especificaciones sugeridas para el detector de lazo.
Estilo UL AWM 1015 VW-1 18AWG TA
Tamaño del cable: 18AWG.
Tipo de conductor: Multi-nucleo estañado trenzado.
Tipo de aislamiento: PVC (mejor estar LXPE) Aislamiento
Tensión de rigidez: 600V.
2.2. Posición de Loop y guía de cableado
· Mantenga una distancia mínima de 200 cm entre 2 asas de alambre adyacentes.
· Mantenga una distancia mínima de 50 cm a cualquier equipo de metal de un aro de alambre.
· Mantenga una distancia mínima de 100 cm a una puerta deslizante de metal en su caso.
· Loop principal en: LOOP1 principal debe estar en el lado del coche que entra, y LOOP2 líder debe estar en el coche dejando a un lado.
· bucle conducen al terminal de LOOP1 y LOOP2 no se deben cruzan entre sí.
· El par de hilos de bucle (loop de lead-in a terminal) necesitan ser torcidos (alrededor de 20 veces por metro).
· La instalación debe evitar estar demasiado cerca de objetos metálicos de gran tamaño, el tamaño de los cables de alimentación, grandes superficies de agua, y tratar de mantener la superficie del bucle limpia y seca.
· Instalaciones cerca de objetos metálicos de gran tamaño o de la influencia de los cables de alimentación; puede tratar de utilizar la instalación del cableado de bucle en forma de "8". (Consulte el siguiente dibujo).


2.3. Ranura en concreto para la instalación del Loop
2.3.1. Ranura en el suelo, sugerencias y dimensiones
Sugerencia de longitud normal de Y es 120cm, pero ajustable de 100cm ~ 200cm.
· La longitud sugerida de X, que es el camino de entrada, 100cm anchura menos (50 cm de cada lado del camino del borde).
· Cada esquina tendría un chaflán de 10 cm x 10 cm.
· El Principal alambre del lazo en la posición "L" normalmente en el lado de longitud corta.
2.3.2. Número de vueltas alambre de bucle requeridos:
Perímetro de Loop: 𝑝𝑒𝑟𝑖𝑚𝑒𝑡𝑟𝑜 = (X + Y) x 2
Profundidad y ancho de la ranura sugerido:
Ancho de ranura: 0.2cm ~ 0.5cm.
Profundidad de la ranura: Normalmente cerca de 3.5cm, o se
puede calcular con la siguiente fórmula: 2.5cm + Número de bucle vuelve x 0.2cm.